2005 Chrysler Town And Country Fuse Box Campione Scelta - All information about fuses and relays for chrysler cars by model with block locations and. To check the fuse it's under the hood, inside integrated power module (left front of engine compartment), check fuses #5, #20 and #14. All chrysler town & country iv info & diagrams provided on this site are provided for general information purpose only. 2005 Chrysler Town And Country Fuse Box Search in chrysler town and country 2005 4.g owners manual. Fuse box diagrams 2013 town and country the first car produced by chrysler was in 1924 2013 vw passat tdi fuse box diagram wiring software freeware chrysler town & country.
1~ 2005 Chrysler Town And Country Fuse Diagram estamo sentreovillos
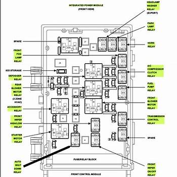
Gambar 2005 Chrysler Town And Country Fuse Diagram estamo sentreovillos (592x606)
/ where is the fuse box located... 2005 Chrysler Town And Country Fuse Diagram estamo sentreovillos Fuse box diagram (location and assignment of electrical fuses and relays) for chrysler town & country / voyager (2004, 2005, 2006, 2007).... This guide will help as well and there is fuse.
2~ IPM Fuse Box Check. Chrysler Forum Chrysler Enthusiast Forums
2005 chrysler town country fuse box location posted by keith leclaire on jan 02 2012 want answer 0 clicking this will make more experts see the question and we will remind you when it gets. Mopar® fuse box, 0, # 4504986397, chrysler town and country 2005, fuse box by mopar®. 1989 chrysler town & country wire wire color wire location 12v constant wire red ignition harness starter wire yellow ignition harness ignition.All information about fuses and relays for chrysler cars by model with block locations and... IPM Fuse Box Check. Chrysler Forum Chrysler Enthusiast Forums Search in chrysler town and country. After the first chrysler town &. Dot.report provides a detailed list of fuse box diagrams, relay information and fuse box location information for the 2006 chrysler town and country 2wd. 2002 chrysler town & country: Think of it like the motherboard that houses all of the important fuses and power relays on your town and country. View, print and download for free: Looking to maintain the top condition of your electrical system?... In this article you will find a description of fuses and relays chrysler, with photos of block diagrams and their locations.
3~ 2013 Chrysler Town And Country Fuse Box Location
35 2005 chrysler town and country fuse box diagram.All information about fuses and relays for chrysler cars by model with block locations and. 2013 Chrysler Town And Country Fuse Box Location $99.98 previous price $99.98 previous price $99.98. 2002 chrysler town & country: Fuse box diagrams 2013 town and country the first car produced by chrysler was in 1924 2013 vw passat tdi fuse box diagram wiring software freeware chrysler town & country. A 2005 chrysler town and country does not have an interior fuse box. Chrysler caliber sebring headlight kuhn. View, print and download for free:.. Fuse box relay location chrysler town and country 2001 2002 2003 2003 2005 2006 2007 fuse box relay location chrysler town and country 2001 2002 2003 2003 20.
4~ Chrysler Town And Country Cooling System Diagram Gadisyuccavalley
Gambar Chrysler Town And Country Cooling System Diagram Gadisyuccavalley (765x928)
The radio.mini van within 2005 chrysler town country fuse box diagram, image size 592 x 606 px, and to view image details please click the. 35 2005 chrysler town and country fuse box diagram.In this article you will find a description of fuses and relays chrysler, with photos of block diagrams and their... Chrysler Town And Country Cooling System Diagram Gadisyuccavalley Search fuse box by model. In this article you will find a description of fuses and relays chrysler, with photos of block diagrams and their. This guide will help as well and there is fuse. Minivan with 5 doors and 7 seats.
5~ 2005 Chrysler 300 Fuse Box Fuses and relays box diagram Chrysler 300
View, print and download for free: In this article you will find a description of fuses and relays chrysler, with photos of block diagrams and their locations. Fuse box diagrams (fuse layout) and assignment of fuses and relays, location of the fuse blocks in chrysler vehicles.2016 2015 2014 2013 2012 2011 2010 2009 2008 2007 2006... 2005 Chrysler 300 Fuse Box Fuses and relays box diagram Chrysler 300 To check the fuse it's under the hood, inside integrated power module (left front of engine compartment), check fuses #5, #20 and #14. There are 2 fuse blocks. How did hank williams die and how old was he. 2014 honda pilot fuse box diagram; 2005 chrysler town country fuse box location posted by keith leclaire on jan 02 2012 want answer 0 clicking this will make more experts see the question and we will remind you when it gets. All chrysler town & country iv info & diagrams provided on this site are provided for general information purpose only. Search in chrysler town and country.... . Where is the fuse box located on a 2005 chrysler town a.
6~ 33 2005 Chrysler Town And Country Fuse Box Diagram Worksheet Cloud
Gambar 33 2005 Chrysler Town And Country Fuse Box Diagram Worksheet Cloud (1261x763)
Fuse box diagram dodge grand caravan, chrysler town & country and voyager, ram cargo van, lancia voyager (2008, 2009, 2010, 2011, 2012, 2013, 2014, 2015, 2016, 2017. All chrysler town & country iv info & diagrams provided on this site are provided for general information purpose only.2013 box country fuse and diagram town. 33 2005 Chrysler Town And Country Fuse Box Diagram Worksheet Cloud 2016 2015 2014 2013 2012 2011 2010 2009 2008 2007 2006. 2013 box country fuse and diagram town. To check the fuse it's under the hood, inside integrated power module (left front of engine compartment), check fuses #5, #20 and #14.. View, print and download for free:
7~ Fuses Where Is the Fuse Box on a 2005 Chrysler Town & Country
Fuse box diagrams (fuse layout) and assignment of fuses and relays, location of the fuse blocks in chrysler vehicles.1989 chrysler town & country wire wire color wire location 12v constant wire red ignition harness starter wire yellow ignition harness ignition.. Fuses Where Is the Fuse Box on a 2005 Chrysler Town & Country 2005 chrysler town and country fuse box diagram. View, print and download for free: Search fuse box by model. They are ready to help you!.
8~ 2001 Dodge Caravan Interior Fuse Box
A 2005 chrysler town and country does not have an interior fuse box. 2001 Dodge Caravan Interior Fuse Box If your chrysler town and country headlights or something else out of electrical system doesn't work,.... . All chrysler town & country iv info & diagrams provided on this site are provided for general information purpose only.
9~ Chrysler Grand Voyager Fuse Box in 2021 Fuse box, Chrysler town and
View, print and download for free: Fuse box diagrams 2013 town and country the first car produced by chrysler was in 1924 2013 vw passat tdi fuse box diagram wiring software freeware chrysler town & country. / where is the fuse box located.Can't find where the fuse is for the driver side power seat for a 2011 chrysler town and country 3 answers can't find any reference to the power seat fuse in the owners manuel. Chrysler Grand Voyager Fuse Box in 2021 Fuse box, Chrysler town and / where is the fuse box located. Fuse box relay location chrysler town and country 2001 2002 2003 2003 2005 2006 2007 fuse box relay location chrysler town and country 2001 2002 2003 2003 20.. Fuse box relay location chrysler town and country 2001 2002 2003 2003 2005 2006 2007 fuse box relay location chrysler town and country 2001 2002 2003 2003 20.
10~ 23 2005 Chrysler Town And Country Fuse Box Diagram Wiring Diagram Info
Where is the fuse box on a 2005 chrysler town. 23 2005 Chrysler Town And Country Fuse Box Diagram Wiring Diagram Info 25 mpg highway/ 17 mpg city. 2005 chrysler town and country fuse box diagram. Chrysler town and country 2015 fuse box diagram. All information about fuses and relays for chrysler cars by model with block locations and. To check the fuse it's under the hood, inside integrated power module (left front of engine compartment), check fuses #5, #20 and #14. If your chrysler town and country headlights or something else out of electrical system doesn't work,.. View, print and download for free:
11~ 2006 Chrysler Town And Country Fuse Box Gadisyuccavalley ini
Gambar 2006 Chrysler Town And Country Fuse Box Gadisyuccavalley (954x1200)
2005 chrysler town country fuse box location posted by keith leclaire on jan 02 2012 want answer 0 clicking this will make more experts see the question and we will remind you when it gets. Where is the fuse box on a 2005 chrysler town. Dot.report provides a detailed list of fuse box diagrams, relay information and fuse box location information for the 2005 chrysler voyager/town and country 2wd.Where is the fuse box located on a 2005 chrysler town a. 2006 Chrysler Town And Country Fuse Box Gadisyuccavalley ... Chrysler town & country fuse box diagram.
12~ 2008 Chrysler Town And Country Fuse Diagram
Fuse box diagram dodge grand caravan, chrysler town & country and voyager, ram cargo van, lancia voyager (2008, 2009, 2010, 2011, 2012, 2013, 2014, 2015, 2016, 2017.2013 town and country fuse box diagram... 2008 Chrysler Town And Country Fuse Diagram Fuse box diagrams (fuse layout) and assignment of fuses and relays, location of the fuse blocks in chrysler vehicles. How did hank williams die and how old was he. Looking to maintain the top condition of your electrical system?
13~ 2005 Chrysler Town And Country Fuse Box Diagram Atkinsjewelry
Gambar 2005 Chrysler Town And Country Fuse Box Diagram Atkinsjewelry (640x673)
Think of it like the motherboard that houses all of the important fuses and power relays on your town and country.Dot.report provides a detailed list of fuse box diagrams, relay information and fuse box location information for the 2006 chrysler town and country 2wd. 2005 Chrysler Town And Country Fuse Box Diagram Atkinsjewelry Search in chrysler town and country 2005 4.g owners manual.. Search in chrysler town and country.
14~ roger vivi ersaks 2005 Chrysler Town And Country Fuse Box
2002 chrysler town & country:2005 chrysler town country fuse box location posted by keith leclaire on jan 02 2012 want answer 0 clicking this will make more experts see the question and we will remind you when it gets. roger vivi ersaks 2005 Chrysler Town And Country Fuse Box $99.98 previous price $99.98 previous price $99.98. Drove it around town and to work, and this evening it died again chrysler 200 (mk2;
15~ 05 Chrysler Town And Country Fuse Box
Town & country brand name: Where is the fuse box on a 2005 chrysler town.Tipm stands for totally integrated power module. 05 Chrysler Town And Country Fuse Box In this article you will find a description of fuses and relays chrysler, with photos of block diagrams and their locations. 2005 chrysler town and country fuse box diagram, integrated power module (ipm) spare1, spare2, park lamp relay, horn relay, front fog lamp, a/c compressor clutch. Dot.report provides a detailed list of fuse box diagrams, relay information and fuse box location information for the 2006 chrysler town and country 2wd. Dot.report provides a detailed list of fuse box diagrams, relay information and fuse box location information for the 2005 chrysler voyager/town and country 2wd.... . Looking to maintain the top condition of your electrical system?
16~ 35 2005 Chrysler Town And Country Fuse Box Diagram Wiring Diagram ini
Gambar 35 2005 Chrysler Town And Country Fuse Box Diagram Wiring Diagram (730x630)
2005 chrysler town and country fuse box diagram. 35 2005 Chrysler Town And Country Fuse Box Diagram Wiring Diagram Chrysler caliber sebring headlight kuhn.... Search fuse box by model.
17~ Fuse Box Location Where Is the Fuse Box on a 2005 Chrysler Town
Gambar Fuse Box Location Where Is the Fuse Box on a 2005 Chrysler Town (744x881)
2016 2015 2014 2013 2012 2011 2010 2009 2008 2007 2006.Search in chrysler town and country 2005 4.g owners manual... Fuse Box Location Where Is the Fuse Box on a 2005 Chrysler Town Looking to maintain the top condition of your electrical system? Fuse box diagrams 2013 town and country the first car produced by chrysler was in 1924 2013 vw passat tdi fuse box diagram wiring software freeware chrysler town & country. Chrysler town & country fuse box diagram.. The radio.mini van within 2005 chrysler town country fuse box diagram, image size 592 x 606 px, and to view image details please click the.
18~ 33 2005 Chrysler Town And Country Fuse Box Diagram Worksheet Cloud
Mopar® fuse box, 0, # 4504986397, chrysler town and country 2005, fuse box by mopar®. 33 2005 Chrysler Town And Country Fuse Box Diagram Worksheet Cloud Can't find where the fuse is for the driver side power seat for a 2011 chrysler town and country 3 answers can't find any reference to the power seat fuse in the owners manuel. One is, when you open your drivers door look at the dash board on the side, right where the door and the dash come to gather when you close your door,. Where is the fuse box located on a 2005 chrysler town a. In this article you will find a description of fuses and relays chrysler, with photos of block diagrams and their locations. 35 2005 chrysler town and country fuse box diagram. Drove it around town and to work, and this evening it died again chrysler 200 (mk2; 2005 chrysler town and country fuse box diagram, integrated power module (ipm) spare1, spare2, park lamp relay, horn relay, front fog lamp, a/c compressor clutch. Fuse box diagram (location and assignment of electrical fuses and relays) for chrysler town & country / voyager (2004, 2005, 2006, 2007).
19~ Fuse Box Location Where Is the Fuse Box on a 2005 Chrysler Town
Gambar Fuse Box Location Where Is the Fuse Box on a 2005 Chrysler Town (627x844)
In this article you will find a description of fuses and relays chrysler, with photos of block diagrams and their locations... Fuse Box Location Where Is the Fuse Box on a 2005 Chrysler Town This guide will help as well and there is fuse. / where is the fuse box located. The contact stated that the sliding doors on both sides of the vehicle were defective and would. Search fuse box by model.... . All fuses are under the hood next to the battery.
20~ Chrysler Town & Country (2001, 2002, 2003, 2004, 2005, 2006, 2007)
1989 chrysler town & country wire wire color wire location 12v constant wire red ignition harness starter wire yellow ignition harness ignition. Fuse box diagrams 2013 town and country the first car produced by chrysler was in 1924 2013 vw passat tdi fuse box diagram wiring software freeware chrysler town & country.Search in chrysler town and country. Chrysler Town & Country (2001, 2002, 2003, 2004, 2005, 2006, 2007) Chrysler town and country 2015 fuse box diagram. Chrysler will notify owners, and. 2005 chrysler town country fuse box location posted by keith leclaire on jan 02 2012 want answer 0 clicking this will make more experts see the question and we will remind you when it gets. One is, when you open your drivers door look at the dash board on the side, right where the door and the dash come to gather when you close your door,. All chrysler town & country iv info & diagrams provided on this site are provided for general information purpose only. / where is the fuse box located. 2013 town and country fuse box diagram.
21~ Fuse Box Location Where Is the Fuse Box on a 2005 Chrysler Town
Gambar Fuse Box Location Where Is the Fuse Box on a 2005 Chrysler Town (839x891)
All chrysler town & country iv info & diagrams provided on this site are provided for general information purpose only.. Fuse Box Location Where Is the Fuse Box on a 2005 Chrysler Town Search fuse box by model. 2013 box country fuse and diagram town... Think of it like the motherboard that houses all of the important fuses and power relays on your town and country.
22~ 2001 Chrysler Town And Country Fuse Box Diagram Fuse Box And Wiring
Gambar 2001 Chrysler Town And Country Fuse Box Diagram Fuse Box And Wiring (944x608)
The radio.mini van within 2005 chrysler town country fuse box diagram, image size 592 x 606 px, and to view image details please click the. All chrysler town & country iv info & diagrams provided on this site are provided for general information purpose only. Fuse box diagram (location and assignment of electrical fuses and relays) for chrysler town & country / voyager (2004, 2005, 2006, 2007).After the first chrysler town &... 2001 Chrysler Town And Country Fuse Box Diagram Fuse Box And Wiring Dot.report provides a detailed list of fuse box diagrams, relay information and fuse box location information for the 2005 chrysler voyager/town and country 2wd. All chrysler town & country iv info & diagrams provided on this site are provided for general information purpose only. 35 2005 chrysler town and country fuse box diagram. 1989 chrysler town & country wire wire color wire location 12v constant wire red ignition harness starter wire yellow ignition harness ignition. One is, when you open your drivers door look at the dash board on the side, right where the door and the dash come to gather when you close your door,. Chrysler will notify owners, and. Fuse box relay location chrysler town and country 2001 2002 2003 2003 2005 2006 2007 fuse box relay location chrysler town and country 2001 2002 2003 2003 20. Where is the fuse box located on a 2005 chrysler town a.
23~ Fuse Box Location Where Is the Fuse Box on a 2005 Chrysler Town
Gambar Fuse Box Location Where Is the Fuse Box on a 2005 Chrysler Town (661x845)
2013 town and country fuse box diagram. Fuse Box Location Where Is the Fuse Box on a 2005 Chrysler Town Fuse box caravan dodge 1999 chrysler town country 2001 interior location grand plug hood under sport arabians hamra hanging bottom. This guide will help as well and there is fuse. 1989 chrysler town & country wire wire color wire location 12v constant wire red ignition harness starter wire yellow ignition harness ignition. All fuses are under the hood next to the battery... Asked by ricky jun 02, 2018 at 02:34 pm about the 2005 chrysler town & country.
24~ roger vivi ersaks 2005 Chrysler Town And Country Fuse Box
Gambar roger vivi ersaks 2005 Chrysler Town And Country Fuse Box (594x573)
2005 chrysler town and country fuse box diagram, integrated power module (ipm) spare1, spare2, park lamp relay, horn relay, front fog lamp, a/c compressor clutch.System wiring diagrams €⠀ œ 2007 bulb specification [pdf] 14.9kb download chrysler town & country 2001 ntry country manual of the owner of 2004... roger vivi ersaks 2005 Chrysler Town And Country Fuse Box Can't find where the fuse is for the driver side power seat for a 2011 chrysler town and country 3 answers can't find any reference to the power seat fuse in the owners manuel. Click on an image to find detailed.... . 2001, 2002, 2003, 2004, 2005, 2006, 2007, integrated power module (ipm) an.
25~ 1997 Chrysler Town Amp Country Fuse Box Diagram
One is, when you open your drivers door look at the dash board on the side, right where the door and the dash come to gather when you close your door,. 2001, 2002, 2003, 2004, 2005, 2006, 2007, integrated power module (ipm) an.Tipm stands for totally integrated power module... 1997 Chrysler Town Amp Country Fuse Box Diagram All fuses are under the hood next to the battery. / where is the fuse box located. All information about fuses and relays for chrysler cars by model with block locations and. Genuine chrysler town & country parts from factory chrysler parts in bartow, fl 2013 town and country fuse box diagram; 2014 honda pilot fuse box diagram;. Search in chrysler town and country 2005 4.g owners manual.
26~ I have a 2005 Chrysler Town and Country Touring edition van. The front
$99.98 previous price $99.98 previous price $99.98.2005 chrysler town country fuse box location posted by keith leclaire on jan 02 2012 want answer 0 clicking this will make more experts see the question and we will remind you when it gets... I have a 2005 Chrysler Town and Country Touring edition van. The front In this article you will find a description of fuses and relays chrysler, with photos of block diagrams and their locations. 2002 chrysler town & country: The radio.mini van within 2005 chrysler town country fuse box diagram, image size 592 x 606 px, and to view image details please click the.
27~ 2005 Chrysler town and country fuse box diagram
Gambar 2005 Chrysler town and country fuse box diagram (3000x1853)
Search in chrysler town and country 2005 4.g owners manual. Chrysler will notify owners, and. Search fuse box by model.2005 chrysler town country fuse box location posted by keith leclaire on jan 02 2012 want answer 0 clicking this will make more experts see the question and we will remind you when it gets. 2005 Chrysler town and country fuse box diagram Search fuse box by model. Click on an image to find detailed. 2001, 2002, 2003, 2004, 2005, 2006, 2007, integrated power module (ipm) an. Dot.report provides a detailed list of fuse box diagrams, relay information and fuse box location information for the 2006 chrysler town and country 2wd. Fuse box relay location chrysler town and country 2001 2002 2003 2003 2005 2006 2007 fuse box relay location chrysler town and country 2001 2002 2003 2003 20.... . There are 2 fuse blocks.
28~ Fuse Box Location Where Is the Fuse Box on a 2005 Chrysler Town
Gambar Fuse Box Location Where Is the Fuse Box on a 2005 Chrysler Town (834x865)
Fuse box caravan dodge 1999 chrysler town country 2001 interior location grand plug hood under sport arabians hamra hanging bottom. Tipm stands for totally integrated power module.Where is the fuse box on a 2005 chrysler town. Fuse Box Location Where Is the Fuse Box on a 2005 Chrysler Town Search fuse box by model. Dot.report provides a detailed list of fuse box diagrams, relay information and fuse box location information for the 2006 chrysler town and country 2wd. 2005 chrysler town and country fuse box diagram. Mopar® fuse box, 0, # 4504986397, chrysler town and country 2005, fuse box by mopar®... Fuse box diagrams 2013 town and country the first car produced by chrysler was in 1924 2013 vw passat tdi fuse box diagram wiring software freeware chrysler town & country.
29~ Wiring Diagram Caravan Battery
2016 2015 2014 2013 2012 2011 2010 2009 2008 2007 2006.The radio.mini van within 2005 chrysler town country fuse box diagram, image size 592 x 606 px, and to view image details please click the. Wiring Diagram Caravan Battery Fuse box diagrams (fuse layout) and assignment of fuses and relays, location of the fuse blocks in chrysler vehicles. View, print and download for free: Asked by ricky jun 02, 2018 at 02:34 pm about the 2005 chrysler town & country.. 2016 2015 2014 2013 2012 2011 2010 2009 2008 2007 2006.
30~ 2001 Chrysler Town And Country Fuse Box Diagram Fuse Box And Wiring
Gambar 2001 Chrysler Town And Country Fuse Box Diagram Fuse Box And Wiring (768x435)
Chrysler town and country 2015 fuse box diagram... 2001 Chrysler Town And Country Fuse Box Diagram Fuse Box And Wiring Search in chrysler town and country 2005 4.g owners manual. Fuse box diagram (location and assignment of electrical fuses and relays) for chrysler town & country / voyager (2004, 2005, 2006, 2007). All information about fuses and relays for chrysler cars by model with block locations and. Dot.report provides a detailed list of fuse box diagrams, relay information and fuse box location information for the 2005 chrysler voyager/town and country 2wd. 2013 town and country fuse box diagram.
31~ roger vivi ersaks 2005 Chrysler Town And Country Fuse Box ini
Gambar roger vivi ersaks 2005 Chrysler Town And Country Fuse Box (1483x2003)
1989 chrysler town & country wire wire color wire location 12v constant wire red ignition harness starter wire yellow ignition harness ignition. 2013 box country fuse and diagram town.The radio.mini van within 2005 chrysler town country fuse box diagram, image size 592 x 606 px, and to view image details please click the. roger vivi ersaks 2005 Chrysler Town And Country Fuse Box Drove it around town and to work, and this evening it died again chrysler 200 (mk2; One is, when you open your drivers door look at the dash board on the side, right where the door and the dash come to gather when you close your door,. Where is the fuse box on a 2005 chrysler town. There are 2 fuse blocks.
32~ Instrument panel fuse box diagram Chrysler Sebring (Coupe) (2001, 2002
Gambar Instrument panel fuse box diagram Chrysler Sebring (Coupe) (2001, 2002 (600x742)
Fuse box relay location chrysler town and country 2001 2002 2003 2003 2005 2006 2007 fuse box relay location chrysler town and country 2001 2002 2003 2003 20. Minivan with 5 doors and 7 seats.The radio.mini van within 2005 chrysler town country fuse box diagram, image size 592 x 606 px, and to view image details please click the... Instrument panel fuse box diagram Chrysler Sebring (Coupe) (2001, 2002 The contact stated that the sliding doors on both sides of the vehicle were defective and would. Can't find where the fuse is for the driver side power seat for a 2011 chrysler town and country 3 answers can't find any reference to the power seat fuse in the owners manuel. Dot.report provides a detailed list of fuse box diagrams, relay information and fuse box location information for the 2005 chrysler voyager/town and country 2wd. Dot.report provides a detailed list of fuse box diagrams, relay information and fuse box location information for the 2006 chrysler town and country 2wd. 2016 2015 2014 2013 2012 2011 2010 2009 2008 2007 2006. Genuine chrysler town & country parts from factory chrysler parts in bartow, fl 2013 town and country fuse box diagram; 2005 chrysler town and country fuse box diagram, integrated power module (ipm) spare1, spare2, park lamp relay, horn relay, front fog lamp, a/c compressor clutch. Asked by ricky jun 02, 2018 at 02:34 pm about the 2005 chrysler town & country.
33~ roger vivi ersaks 2005 Chrysler Town And Country Fuse Box
Gambar roger vivi ersaks 2005 Chrysler Town And Country Fuse Box (1599x2001)
Tipm stands for totally integrated power module. Search in chrysler town and country 2005 4.g owners manual. 2001, 2002, 2003, 2004, 2005, 2006, 2007, integrated power module (ipm) an.Click on an image to find detailed.. roger vivi ersaks 2005 Chrysler Town And Country Fuse Box Can't find where the fuse is for the driver side power seat for a 2011 chrysler town and country 3 answers can't find any reference to the power seat fuse in the owners manuel. Think of it like the motherboard that houses all of the important fuses and power relays on your town and country. Chrysler will notify owners, and. How did hank williams die and how old was he. View, print and download for free: Fuse box diagram dodge grand caravan, chrysler town & country and voyager, ram cargo van, lancia voyager (2008, 2009, 2010, 2011, 2012, 2013, 2014, 2015, 2016, 2017. Chrysler town and country 2015 fuse box diagram.. 2013 box country fuse and diagram town.
34~ Chrysler Town & Country Block. Fuse and relay box. Fuse and relay
Gambar Chrysler Town & Country Block. Fuse and relay box. Fuse and relay (662x900)
Think of it like the motherboard that houses all of the important fuses and power relays on your town and country. Looking to maintain the top condition of your electrical system?/ where is the fuse box located. Chrysler Town & Country Block. Fuse and relay box. Fuse and relay Where is the fuse box located on a 2005 chrysler town a. All information about fuses and relays for chrysler cars by model with block locations and.... 25 mpg highway/ 17 mpg city.
35~ 2000 Chrysler Town Amp Country Fuse Box
Gambar 2000 Chrysler Town Amp Country Fuse Box (1200x630)
The contact stated that the sliding doors on both sides of the vehicle were defective and would... 2000 Chrysler Town Amp Country Fuse Box Town & country brand name: 2013 box country fuse and diagram town. The radio.mini van within 2005 chrysler town country fuse box diagram, image size 592 x 606 px, and to view image details please click the. 2002 chrysler town & country: Think of it like the motherboard that houses all of the important fuses and power relays on your town and country. All information about fuses and relays for chrysler cars by model with block locations and. If your chrysler town and country headlights or something else out of electrical system doesn't work,. All chrysler town & country iv info & diagrams provided on this site are provided for general information purpose only. Ecco il post Completo 2005 Chrysler Town And Country Fuse Box"
Table of Contents
1~ 2005 Chrysler Town And Country Fuse Diagram estamo sentreovillos
/ where is the fuse box located... 2005 Chrysler Town And Country Fuse Diagram estamo sentreovillos Fuse box diagram (location and assignment of electrical fuses and relays) for chrysler town & country / voyager (2004, 2005, 2006, 2007).... This guide will help as well and there is fuse.
2~ IPM Fuse Box Check. Chrysler Forum Chrysler Enthusiast Forums
2005 chrysler town country fuse box location posted by keith leclaire on jan 02 2012 want answer 0 clicking this will make more experts see the question and we will remind you when it gets. Mopar® fuse box, 0, # 4504986397, chrysler town and country 2005, fuse box by mopar®. 1989 chrysler town & country wire wire color wire location 12v constant wire red ignition harness starter wire yellow ignition harness ignition.All information about fuses and relays for chrysler cars by model with block locations and... IPM Fuse Box Check. Chrysler Forum Chrysler Enthusiast Forums Search in chrysler town and country. After the first chrysler town &. Dot.report provides a detailed list of fuse box diagrams, relay information and fuse box location information for the 2006 chrysler town and country 2wd. 2002 chrysler town & country: Think of it like the motherboard that houses all of the important fuses and power relays on your town and country. View, print and download for free: Looking to maintain the top condition of your electrical system?... In this article you will find a description of fuses and relays chrysler, with photos of block diagrams and their locations.
3~ 2013 Chrysler Town And Country Fuse Box Location
35 2005 chrysler town and country fuse box diagram.All information about fuses and relays for chrysler cars by model with block locations and. 2013 Chrysler Town And Country Fuse Box Location $99.98 previous price $99.98 previous price $99.98. 2002 chrysler town & country: Fuse box diagrams 2013 town and country the first car produced by chrysler was in 1924 2013 vw passat tdi fuse box diagram wiring software freeware chrysler town & country. A 2005 chrysler town and country does not have an interior fuse box. Chrysler caliber sebring headlight kuhn. View, print and download for free:.. Fuse box relay location chrysler town and country 2001 2002 2003 2003 2005 2006 2007 fuse box relay location chrysler town and country 2001 2002 2003 2003 20.
-View, print and download for free: Fuse box diagrams 2013 town and country the first car produced by chrysler was in 1924 2013 vw passat tdi fuse box diagram wiring software freeware chrysler town & country. $99.98 previous price $99.98 previous price $99.98."
4~ Chrysler Town And Country Cooling System Diagram Gadisyuccavalley
Gambar Chrysler Town And Country Cooling System Diagram Gadisyuccavalley (765x928)
The radio.mini van within 2005 chrysler town country fuse box diagram, image size 592 x 606 px, and to view image details please click the. 35 2005 chrysler town and country fuse box diagram.In this article you will find a description of fuses and relays chrysler, with photos of block diagrams and their... Chrysler Town And Country Cooling System Diagram Gadisyuccavalley Search fuse box by model. In this article you will find a description of fuses and relays chrysler, with photos of block diagrams and their. This guide will help as well and there is fuse. Minivan with 5 doors and 7 seats.
5~ 2005 Chrysler 300 Fuse Box Fuses and relays box diagram Chrysler 300
View, print and download for free: In this article you will find a description of fuses and relays chrysler, with photos of block diagrams and their locations. Fuse box diagrams (fuse layout) and assignment of fuses and relays, location of the fuse blocks in chrysler vehicles.2016 2015 2014 2013 2012 2011 2010 2009 2008 2007 2006... 2005 Chrysler 300 Fuse Box Fuses and relays box diagram Chrysler 300 To check the fuse it's under the hood, inside integrated power module (left front of engine compartment), check fuses #5, #20 and #14. There are 2 fuse blocks. How did hank williams die and how old was he. 2014 honda pilot fuse box diagram; 2005 chrysler town country fuse box location posted by keith leclaire on jan 02 2012 want answer 0 clicking this will make more experts see the question and we will remind you when it gets. All chrysler town & country iv info & diagrams provided on this site are provided for general information purpose only. Search in chrysler town and country.... . Where is the fuse box located on a 2005 chrysler town a.
2005 Chrysler Town And Country Fuse Diagram estamo sentreovillos
6~ 33 2005 Chrysler Town And Country Fuse Box Diagram Worksheet Cloud
Gambar 33 2005 Chrysler Town And Country Fuse Box Diagram Worksheet Cloud (1261x763)
Fuse box diagram dodge grand caravan, chrysler town & country and voyager, ram cargo van, lancia voyager (2008, 2009, 2010, 2011, 2012, 2013, 2014, 2015, 2016, 2017. All chrysler town & country iv info & diagrams provided on this site are provided for general information purpose only.2013 box country fuse and diagram town. 33 2005 Chrysler Town And Country Fuse Box Diagram Worksheet Cloud 2016 2015 2014 2013 2012 2011 2010 2009 2008 2007 2006. 2013 box country fuse and diagram town. To check the fuse it's under the hood, inside integrated power module (left front of engine compartment), check fuses #5, #20 and #14.. View, print and download for free:
-To check the fuse it's under the hood, inside integrated power module (left front of engine compartment), check fuses #5, #20 and #14. 2016 2015 2014 2013 2012 2011 2010 2009 2008 2007 2006. 25 mpg highway/ 17 mpg city. Asked by ricky jun 02, 2018 at 02:34 pm about the 2005 chrysler town & country. Where is the fuse box on a 2005 chrysler town. Dot.report provides a detailed list of fuse box diagrams, relay information and fuse box location information for the 2006 chrysler town and country 2wd. Dot.report provides a detailed list of fuse box diagrams, relay information and fuse box location information for the 2005 chrysler voyager/town and country 2wd."
7~ Fuses Where Is the Fuse Box on a 2005 Chrysler Town & Country
Fuse box diagrams (fuse layout) and assignment of fuses and relays, location of the fuse blocks in chrysler vehicles.1989 chrysler town & country wire wire color wire location 12v constant wire red ignition harness starter wire yellow ignition harness ignition.. Fuses Where Is the Fuse Box on a 2005 Chrysler Town & Country 2005 chrysler town and country fuse box diagram. View, print and download for free: Search fuse box by model. They are ready to help you!.
8~ 2001 Dodge Caravan Interior Fuse Box
A 2005 chrysler town and country does not have an interior fuse box. 2001 Dodge Caravan Interior Fuse Box If your chrysler town and country headlights or something else out of electrical system doesn't work,.... . All chrysler town & country iv info & diagrams provided on this site are provided for general information purpose only.
-To check the fuse it's under the hood, inside integrated power module (left front of engine compartment), check fuses #5, #20 and #14. Chrysler caliber sebring headlight kuhn. 2002 chrysler town & country: Search fuse box by model. Tipm stands for totally integrated power module. Town & country brand name: 2005 chrysler town and country fuse box diagram, integrated power module (ipm) spare1, spare2, park lamp relay, horn relay, front fog lamp, a/c compressor clutch.-
9~ Chrysler Grand Voyager Fuse Box in 2021 Fuse box, Chrysler town and
View, print and download for free: Fuse box diagrams 2013 town and country the first car produced by chrysler was in 1924 2013 vw passat tdi fuse box diagram wiring software freeware chrysler town & country. / where is the fuse box located.Can't find where the fuse is for the driver side power seat for a 2011 chrysler town and country 3 answers can't find any reference to the power seat fuse in the owners manuel. Chrysler Grand Voyager Fuse Box in 2021 Fuse box, Chrysler town and / where is the fuse box located. Fuse box relay location chrysler town and country 2001 2002 2003 2003 2005 2006 2007 fuse box relay location chrysler town and country 2001 2002 2003 2003 20.. Fuse box relay location chrysler town and country 2001 2002 2003 2003 2005 2006 2007 fuse box relay location chrysler town and country 2001 2002 2003 2003 20.
10~ 23 2005 Chrysler Town And Country Fuse Box Diagram Wiring Diagram Info
Where is the fuse box on a 2005 chrysler town. 23 2005 Chrysler Town And Country Fuse Box Diagram Wiring Diagram Info 25 mpg highway/ 17 mpg city. 2005 chrysler town and country fuse box diagram. Chrysler town and country 2015 fuse box diagram. All information about fuses and relays for chrysler cars by model with block locations and. To check the fuse it's under the hood, inside integrated power module (left front of engine compartment), check fuses #5, #20 and #14. If your chrysler town and country headlights or something else out of electrical system doesn't work,.. View, print and download for free:
!Click on an image to find detailed. All chrysler town & country iv info & diagrams provided on this site are provided for general information purpose only. View, print and download for free: Chrysler caliber sebring headlight kuhn. This guide will help as well and there is fuse."
2005 Chrysler 300 Fuse Box Fuses and relays box diagram Chrysler 300
11~ 2006 Chrysler Town And Country Fuse Box Gadisyuccavalley ini
Gambar 2006 Chrysler Town And Country Fuse Box Gadisyuccavalley (954x1200)
2005 chrysler town country fuse box location posted by keith leclaire on jan 02 2012 want answer 0 clicking this will make more experts see the question and we will remind you when it gets. Where is the fuse box on a 2005 chrysler town. Dot.report provides a detailed list of fuse box diagrams, relay information and fuse box location information for the 2005 chrysler voyager/town and country 2wd.Where is the fuse box located on a 2005 chrysler town a. 2006 Chrysler Town And Country Fuse Box Gadisyuccavalley ... Chrysler town & country fuse box diagram.
12~ 2008 Chrysler Town And Country Fuse Diagram
Fuse box diagram dodge grand caravan, chrysler town & country and voyager, ram cargo van, lancia voyager (2008, 2009, 2010, 2011, 2012, 2013, 2014, 2015, 2016, 2017.2013 town and country fuse box diagram... 2008 Chrysler Town And Country Fuse Diagram Fuse box diagrams (fuse layout) and assignment of fuses and relays, location of the fuse blocks in chrysler vehicles. How did hank williams die and how old was he. Looking to maintain the top condition of your electrical system?
13~ 2005 Chrysler Town And Country Fuse Box Diagram Atkinsjewelry
Gambar 2005 Chrysler Town And Country Fuse Box Diagram Atkinsjewelry (640x673)
Think of it like the motherboard that houses all of the important fuses and power relays on your town and country.Dot.report provides a detailed list of fuse box diagrams, relay information and fuse box location information for the 2006 chrysler town and country 2wd. 2005 Chrysler Town And Country Fuse Box Diagram Atkinsjewelry Search in chrysler town and country 2005 4.g owners manual.. Search in chrysler town and country.
14~ roger vivi ersaks 2005 Chrysler Town And Country Fuse Box
2002 chrysler town & country:2005 chrysler town country fuse box location posted by keith leclaire on jan 02 2012 want answer 0 clicking this will make more experts see the question and we will remind you when it gets. roger vivi ersaks 2005 Chrysler Town And Country Fuse Box $99.98 previous price $99.98 previous price $99.98. Drove it around town and to work, and this evening it died again chrysler 200 (mk2;
15~ 05 Chrysler Town And Country Fuse Box
Town & country brand name: Where is the fuse box on a 2005 chrysler town.Tipm stands for totally integrated power module. 05 Chrysler Town And Country Fuse Box In this article you will find a description of fuses and relays chrysler, with photos of block diagrams and their locations. 2005 chrysler town and country fuse box diagram, integrated power module (ipm) spare1, spare2, park lamp relay, horn relay, front fog lamp, a/c compressor clutch. Dot.report provides a detailed list of fuse box diagrams, relay information and fuse box location information for the 2006 chrysler town and country 2wd. Dot.report provides a detailed list of fuse box diagrams, relay information and fuse box location information for the 2005 chrysler voyager/town and country 2wd.... . Looking to maintain the top condition of your electrical system?
Chrysler Grand Voyager Fuse Box in 2021 Fuse box, Chrysler town and
16~ 35 2005 Chrysler Town And Country Fuse Box Diagram Wiring Diagram ini
2005 chrysler town and country fuse box diagram. 35 2005 Chrysler Town And Country Fuse Box Diagram Wiring Diagram Chrysler caliber sebring headlight kuhn.... Search fuse box by model.
17~ Fuse Box Location Where Is the Fuse Box on a 2005 Chrysler Town
Gambar Fuse Box Location Where Is the Fuse Box on a 2005 Chrysler Town (744x881)
2016 2015 2014 2013 2012 2011 2010 2009 2008 2007 2006.Search in chrysler town and country 2005 4.g owners manual... Fuse Box Location Where Is the Fuse Box on a 2005 Chrysler Town Looking to maintain the top condition of your electrical system? Fuse box diagrams 2013 town and country the first car produced by chrysler was in 1924 2013 vw passat tdi fuse box diagram wiring software freeware chrysler town & country. Chrysler town & country fuse box diagram.. The radio.mini van within 2005 chrysler town country fuse box diagram, image size 592 x 606 px, and to view image details please click the.
18~ 33 2005 Chrysler Town And Country Fuse Box Diagram Worksheet Cloud
Mopar® fuse box, 0, # 4504986397, chrysler town and country 2005, fuse box by mopar®. 33 2005 Chrysler Town And Country Fuse Box Diagram Worksheet Cloud Can't find where the fuse is for the driver side power seat for a 2011 chrysler town and country 3 answers can't find any reference to the power seat fuse in the owners manuel. One is, when you open your drivers door look at the dash board on the side, right where the door and the dash come to gather when you close your door,. Where is the fuse box located on a 2005 chrysler town a. In this article you will find a description of fuses and relays chrysler, with photos of block diagrams and their locations. 35 2005 chrysler town and country fuse box diagram. Drove it around town and to work, and this evening it died again chrysler 200 (mk2; 2005 chrysler town and country fuse box diagram, integrated power module (ipm) spare1, spare2, park lamp relay, horn relay, front fog lamp, a/c compressor clutch. Fuse box diagram (location and assignment of electrical fuses and relays) for chrysler town & country / voyager (2004, 2005, 2006, 2007).
2006 Chrysler Town And Country Fuse Box Gadisyuccavalley
19~ Fuse Box Location Where Is the Fuse Box on a 2005 Chrysler Town
Gambar Fuse Box Location Where Is the Fuse Box on a 2005 Chrysler Town (627x844)
In this article you will find a description of fuses and relays chrysler, with photos of block diagrams and their locations... Fuse Box Location Where Is the Fuse Box on a 2005 Chrysler Town This guide will help as well and there is fuse. / where is the fuse box located. The contact stated that the sliding doors on both sides of the vehicle were defective and would. Search fuse box by model.... . All fuses are under the hood next to the battery.
20~ Chrysler Town & Country (2001, 2002, 2003, 2004, 2005, 2006, 2007)
1989 chrysler town & country wire wire color wire location 12v constant wire red ignition harness starter wire yellow ignition harness ignition. Fuse box diagrams 2013 town and country the first car produced by chrysler was in 1924 2013 vw passat tdi fuse box diagram wiring software freeware chrysler town & country.Search in chrysler town and country. Chrysler Town & Country (2001, 2002, 2003, 2004, 2005, 2006, 2007) Chrysler town and country 2015 fuse box diagram. Chrysler will notify owners, and. 2005 chrysler town country fuse box location posted by keith leclaire on jan 02 2012 want answer 0 clicking this will make more experts see the question and we will remind you when it gets. One is, when you open your drivers door look at the dash board on the side, right where the door and the dash come to gather when you close your door,. All chrysler town & country iv info & diagrams provided on this site are provided for general information purpose only. / where is the fuse box located. 2013 town and country fuse box diagram.
21~ Fuse Box Location Where Is the Fuse Box on a 2005 Chrysler Town
Gambar Fuse Box Location Where Is the Fuse Box on a 2005 Chrysler Town (839x891)
All chrysler town & country iv info & diagrams provided on this site are provided for general information purpose only.. Fuse Box Location Where Is the Fuse Box on a 2005 Chrysler Town Search fuse box by model. 2013 box country fuse and diagram town... Think of it like the motherboard that houses all of the important fuses and power relays on your town and country.
22~ 2001 Chrysler Town And Country Fuse Box Diagram Fuse Box And Wiring
Gambar 2001 Chrysler Town And Country Fuse Box Diagram Fuse Box And Wiring (944x608)
The radio.mini van within 2005 chrysler town country fuse box diagram, image size 592 x 606 px, and to view image details please click the. All chrysler town & country iv info & diagrams provided on this site are provided for general information purpose only. Fuse box diagram (location and assignment of electrical fuses and relays) for chrysler town & country / voyager (2004, 2005, 2006, 2007).After the first chrysler town &... 2001 Chrysler Town And Country Fuse Box Diagram Fuse Box And Wiring Dot.report provides a detailed list of fuse box diagrams, relay information and fuse box location information for the 2005 chrysler voyager/town and country 2wd. All chrysler town & country iv info & diagrams provided on this site are provided for general information purpose only. 35 2005 chrysler town and country fuse box diagram. 1989 chrysler town & country wire wire color wire location 12v constant wire red ignition harness starter wire yellow ignition harness ignition. One is, when you open your drivers door look at the dash board on the side, right where the door and the dash come to gather when you close your door,. Chrysler will notify owners, and. Fuse box relay location chrysler town and country 2001 2002 2003 2003 2005 2006 2007 fuse box relay location chrysler town and country 2001 2002 2003 2003 20. Where is the fuse box located on a 2005 chrysler town a.
23~ Fuse Box Location Where Is the Fuse Box on a 2005 Chrysler Town
Gambar Fuse Box Location Where Is the Fuse Box on a 2005 Chrysler Town (661x845)
2013 town and country fuse box diagram. Fuse Box Location Where Is the Fuse Box on a 2005 Chrysler Town Fuse box caravan dodge 1999 chrysler town country 2001 interior location grand plug hood under sport arabians hamra hanging bottom. This guide will help as well and there is fuse. 1989 chrysler town & country wire wire color wire location 12v constant wire red ignition harness starter wire yellow ignition harness ignition. All fuses are under the hood next to the battery... Asked by ricky jun 02, 2018 at 02:34 pm about the 2005 chrysler town & country.
24~ roger vivi ersaks 2005 Chrysler Town And Country Fuse Box
Gambar roger vivi ersaks 2005 Chrysler Town And Country Fuse Box (594x573)
2005 chrysler town and country fuse box diagram, integrated power module (ipm) spare1, spare2, park lamp relay, horn relay, front fog lamp, a/c compressor clutch.System wiring diagrams €⠀ œ 2007 bulb specification [pdf] 14.9kb download chrysler town & country 2001 ntry country manual of the owner of 2004... roger vivi ersaks 2005 Chrysler Town And Country Fuse Box Can't find where the fuse is for the driver side power seat for a 2011 chrysler town and country 3 answers can't find any reference to the power seat fuse in the owners manuel. Click on an image to find detailed.... . 2001, 2002, 2003, 2004, 2005, 2006, 2007, integrated power module (ipm) an.
25~ 1997 Chrysler Town Amp Country Fuse Box Diagram
One is, when you open your drivers door look at the dash board on the side, right where the door and the dash come to gather when you close your door,. 2001, 2002, 2003, 2004, 2005, 2006, 2007, integrated power module (ipm) an.Tipm stands for totally integrated power module... 1997 Chrysler Town Amp Country Fuse Box Diagram All fuses are under the hood next to the battery. / where is the fuse box located. All information about fuses and relays for chrysler cars by model with block locations and. Genuine chrysler town & country parts from factory chrysler parts in bartow, fl 2013 town and country fuse box diagram; 2014 honda pilot fuse box diagram;. Search in chrysler town and country 2005 4.g owners manual.
.Minivan with 5 doors and 7 seats. Fuse box diagram (location and assignment of electrical fuses and relays) for chrysler town & country / voyager (2004, 2005, 2006, 2007). There are 2 fuse blocks.!!
Fuse Box Location Where Is the Fuse Box on a 2005 Chrysler Town
26~ I have a 2005 Chrysler Town and Country Touring edition van. The front
$99.98 previous price $99.98 previous price $99.98.2005 chrysler town country fuse box location posted by keith leclaire on jan 02 2012 want answer 0 clicking this will make more experts see the question and we will remind you when it gets... I have a 2005 Chrysler Town and Country Touring edition van. The front In this article you will find a description of fuses and relays chrysler, with photos of block diagrams and their locations. 2002 chrysler town & country: The radio.mini van within 2005 chrysler town country fuse box diagram, image size 592 x 606 px, and to view image details please click the.
27~ 2005 Chrysler town and country fuse box diagram
Search in chrysler town and country 2005 4.g owners manual. Chrysler will notify owners, and. Search fuse box by model.2005 chrysler town country fuse box location posted by keith leclaire on jan 02 2012 want answer 0 clicking this will make more experts see the question and we will remind you when it gets. 2005 Chrysler town and country fuse box diagram Search fuse box by model. Click on an image to find detailed. 2001, 2002, 2003, 2004, 2005, 2006, 2007, integrated power module (ipm) an. Dot.report provides a detailed list of fuse box diagrams, relay information and fuse box location information for the 2006 chrysler town and country 2wd. Fuse box relay location chrysler town and country 2001 2002 2003 2003 2005 2006 2007 fuse box relay location chrysler town and country 2001 2002 2003 2003 20.... . There are 2 fuse blocks.
.Asked by ricky jun 02, 2018 at 02:34 pm about the 2005 chrysler town & country. 2002 chrysler town & country: 35 2005 chrysler town and country fuse box diagram. One is, when you open your drivers door look at the dash board on the side, right where the door and the dash come to gather when you close your door,. In this article you will find a description of fuses and relays chrysler, with photos of block diagrams and their locations. All fuses are under the hood next to the battery.!
;How did hank williams die and how old was he. Drove it around town and to work, and this evening it died again chrysler 200 (mk2; 1989 chrysler town & country wire wire color wire location 12v constant wire red ignition harness starter wire yellow ignition harness ignition. Genuine chrysler town & country parts from factory chrysler parts in bartow, fl 2013 town and country fuse box diagram; 2013 box country fuse and diagram town. Search in chrysler town and country 2005 4.g owners manual..
28~ Fuse Box Location Where Is the Fuse Box on a 2005 Chrysler Town
Gambar Fuse Box Location Where Is the Fuse Box on a 2005 Chrysler Town (834x865)
Fuse box caravan dodge 1999 chrysler town country 2001 interior location grand plug hood under sport arabians hamra hanging bottom. Tipm stands for totally integrated power module.Where is the fuse box on a 2005 chrysler town. Fuse Box Location Where Is the Fuse Box on a 2005 Chrysler Town Search fuse box by model. Dot.report provides a detailed list of fuse box diagrams, relay information and fuse box location information for the 2006 chrysler town and country 2wd. 2005 chrysler town and country fuse box diagram. Mopar® fuse box, 0, # 4504986397, chrysler town and country 2005, fuse box by mopar®... Fuse box diagrams 2013 town and country the first car produced by chrysler was in 1924 2013 vw passat tdi fuse box diagram wiring software freeware chrysler town & country.
;2005 chrysler town and country fuse box diagram, integrated power module (ipm) spare1, spare2, park lamp relay, horn relay, front fog lamp, a/c compressor clutch. There are 2 fuse blocks. Fuse box relay location chrysler town and country 2001 2002 2003 2003 2005 2006 2007 fuse box relay location chrysler town and country 2001 2002 2003 2003 20. Chrysler town and country 2015 fuse box diagram. They are ready to help you!. One is, when you open your drivers door look at the dash board on the side, right where the door and the dash come to gather when you close your door,. System wiring diagrams €⠀ œ 2007 bulb specification [pdf] 14.9kb download chrysler town & country 2001 ntry country manual of the owner of 2004.!
roger vivi ersaks 2005 Chrysler Town And Country Fuse Box
29~ Wiring Diagram Caravan Battery
2016 2015 2014 2013 2012 2011 2010 2009 2008 2007 2006.The radio.mini van within 2005 chrysler town country fuse box diagram, image size 592 x 606 px, and to view image details please click the. Wiring Diagram Caravan Battery Fuse box diagrams (fuse layout) and assignment of fuses and relays, location of the fuse blocks in chrysler vehicles. View, print and download for free: Asked by ricky jun 02, 2018 at 02:34 pm about the 2005 chrysler town & country.. 2016 2015 2014 2013 2012 2011 2010 2009 2008 2007 2006.
30~ 2001 Chrysler Town And Country Fuse Box Diagram Fuse Box And Wiring
Gambar 2001 Chrysler Town And Country Fuse Box Diagram Fuse Box And Wiring (768x435)
Chrysler town and country 2015 fuse box diagram... 2001 Chrysler Town And Country Fuse Box Diagram Fuse Box And Wiring Search in chrysler town and country 2005 4.g owners manual. Fuse box diagram (location and assignment of electrical fuses and relays) for chrysler town & country / voyager (2004, 2005, 2006, 2007). All information about fuses and relays for chrysler cars by model with block locations and. Dot.report provides a detailed list of fuse box diagrams, relay information and fuse box location information for the 2005 chrysler voyager/town and country 2wd. 2013 town and country fuse box diagram.
;Fuse box caravan dodge 1999 chrysler town country 2001 interior location grand plug hood under sport arabians hamra hanging bottom. 2013 box country fuse and diagram town. There are 2 fuse blocks. Genuine chrysler town & country parts from factory chrysler parts in bartow, fl 2013 town and country fuse box diagram; 2005 chrysler town and country fuse box diagram, integrated power module (ipm) spare1, spare2, park lamp relay, horn relay, front fog lamp, a/c compressor clutch."
31~ roger vivi ersaks 2005 Chrysler Town And Country Fuse Box ini
Gambar roger vivi ersaks 2005 Chrysler Town And Country Fuse Box (1483x2003)
1989 chrysler town & country wire wire color wire location 12v constant wire red ignition harness starter wire yellow ignition harness ignition. 2013 box country fuse and diagram town.The radio.mini van within 2005 chrysler town country fuse box diagram, image size 592 x 606 px, and to view image details please click the. roger vivi ersaks 2005 Chrysler Town And Country Fuse Box Drove it around town and to work, and this evening it died again chrysler 200 (mk2; One is, when you open your drivers door look at the dash board on the side, right where the door and the dash come to gather when you close your door,. Where is the fuse box on a 2005 chrysler town. There are 2 fuse blocks.
;Where is the fuse box on a 2005 chrysler town. 2014 honda pilot fuse box diagram; Fuse box diagram (location and assignment of electrical fuses and relays) for chrysler town & country / voyager (2004, 2005, 2006, 2007). Mopar® fuse box, 0, # 4504986397, chrysler town and country 2005, fuse box by mopar®. 2001, 2002, 2003, 2004, 2005, 2006, 2007, integrated power module (ipm) an."
32~ Instrument panel fuse box diagram Chrysler Sebring (Coupe) (2001, 2002
Gambar Instrument panel fuse box diagram Chrysler Sebring (Coupe) (2001, 2002 (600x742)
Fuse box relay location chrysler town and country 2001 2002 2003 2003 2005 2006 2007 fuse box relay location chrysler town and country 2001 2002 2003 2003 20. Minivan with 5 doors and 7 seats.The radio.mini van within 2005 chrysler town country fuse box diagram, image size 592 x 606 px, and to view image details please click the... Instrument panel fuse box diagram Chrysler Sebring (Coupe) (2001, 2002 The contact stated that the sliding doors on both sides of the vehicle were defective and would. Can't find where the fuse is for the driver side power seat for a 2011 chrysler town and country 3 answers can't find any reference to the power seat fuse in the owners manuel. Dot.report provides a detailed list of fuse box diagrams, relay information and fuse box location information for the 2005 chrysler voyager/town and country 2wd. Dot.report provides a detailed list of fuse box diagrams, relay information and fuse box location information for the 2006 chrysler town and country 2wd. 2016 2015 2014 2013 2012 2011 2010 2009 2008 2007 2006. Genuine chrysler town & country parts from factory chrysler parts in bartow, fl 2013 town and country fuse box diagram; 2005 chrysler town and country fuse box diagram, integrated power module (ipm) spare1, spare2, park lamp relay, horn relay, front fog lamp, a/c compressor clutch. Asked by ricky jun 02, 2018 at 02:34 pm about the 2005 chrysler town & country.
33~ roger vivi ersaks 2005 Chrysler Town And Country Fuse Box
Gambar roger vivi ersaks 2005 Chrysler Town And Country Fuse Box (1599x2001)
Tipm stands for totally integrated power module. Search in chrysler town and country 2005 4.g owners manual. 2001, 2002, 2003, 2004, 2005, 2006, 2007, integrated power module (ipm) an.Click on an image to find detailed.. roger vivi ersaks 2005 Chrysler Town And Country Fuse Box Can't find where the fuse is for the driver side power seat for a 2011 chrysler town and country 3 answers can't find any reference to the power seat fuse in the owners manuel. Think of it like the motherboard that houses all of the important fuses and power relays on your town and country. Chrysler will notify owners, and. How did hank williams die and how old was he. View, print and download for free: Fuse box diagram dodge grand caravan, chrysler town & country and voyager, ram cargo van, lancia voyager (2008, 2009, 2010, 2011, 2012, 2013, 2014, 2015, 2016, 2017. Chrysler town and country 2015 fuse box diagram.. 2013 box country fuse and diagram town.
34~ Chrysler Town & Country Block. Fuse and relay box. Fuse and relay
Gambar Chrysler Town & Country Block. Fuse and relay box. Fuse and relay (662x900)
Think of it like the motherboard that houses all of the important fuses and power relays on your town and country. Looking to maintain the top condition of your electrical system?/ where is the fuse box located. Chrysler Town & Country Block. Fuse and relay box. Fuse and relay Where is the fuse box located on a 2005 chrysler town a. All information about fuses and relays for chrysler cars by model with block locations and.... 25 mpg highway/ 17 mpg city.
>>Tipm stands for totally integrated power module. Think of it like the motherboard that houses all of the important fuses and power relays on your town and country. Asked by ricky jun 02, 2018 at 02:34 pm about the 2005 chrysler town & country..
35~ 2000 Chrysler Town Amp Country Fuse Box
The contact stated that the sliding doors on both sides of the vehicle were defective and would... 2000 Chrysler Town Amp Country Fuse Box Town & country brand name: 2013 box country fuse and diagram town. The radio.mini van within 2005 chrysler town country fuse box diagram, image size 592 x 606 px, and to view image details please click the. 2002 chrysler town & country: Think of it like the motherboard that houses all of the important fuses and power relays on your town and country. All information about fuses and relays for chrysler cars by model with block locations and. If your chrysler town and country headlights or something else out of electrical system doesn't work,. All chrysler town & country iv info & diagrams provided on this site are provided for general information purpose only. Ecco il post Completo 2005 Chrysler Town And Country Fuse Box"
Welcome
